SLOKOV VARIANT SL39D Kotol na drevo (3. emisná trieda)
Model: SL39D
Popis
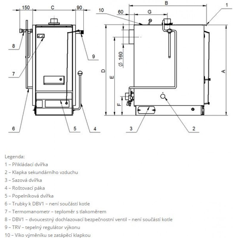
SLOKOV VARIANT SL39D Kotol na drevo (3. emisná trieda)Kotol je zvarený z oceľových plechov. Vnútorný priestor je rozdelený vodné prepážkou na násypnej šachty, spaľovaciu komoru a výmenník, ktorým prúdi spaliny ku dymovému hrdlu. Pod spaľovacou komorou a násypnej šachty je dvojdielny rošt, ovládaný z bočnej strany kotla pákou.
Regulácia sekundárneho vzduchu privádzaného do spaľovacej komory zvyšuje účinnosť kotla. Primárny vzduch je privádzaný pod rošt regulovateľnou klapkou v popolníkových dvierkach. Regulácia sa vykonáva ručne alebo automatickým regulátorom výkonu (TRV), ktorý je dodávaný ako príslušenstvo súčasne s kotlom. Vstup a výstup vykurovacej vody je štandardne vybavený prírubami g 2 ", je možné si ale objednať aj kotol s prírubami G 1 1/2" alebo DN 65.
Dymovod je v osi kotla na zadnej strane. Zatápacou klapka sa ovláda z hornej časti kotla.
Použitie kotla, palivo
Oceľový teplovodný kotol VARIANT SL je zdrojom tepla vhodný pre vykurovanie bytov, rodinných domov, prevádzok a podobných objektov s tepelnou stratou okolo 40 kW. Vykurovací systém môže byť s otvorenou alebo tlakovou expanznou nádobou, samospádovým alebo núteným obehom vykurovacej vody, s maximálnym pretlakom 200 kPa.
Kotol VARIANT SL39D je prednostne určený pre spaľovanie suchého dreva s maximálnou vlhkosťou 20%, tj. Prírezov z guľatiny do pr. 100mm a dĺžky do 330mm, respektíve štiepaného dreva s kôrou alebo bez kôry. Výrobca doporučuje palivo ukladať do prikladacie šachty priečne, aby dochádzalo k plynulému odhorievaní a zosuvu palív. Pri použití tzv. "Netvári", je nutný zvýšený dohľad obsluhy.
Dobrá funkcia je podmienená okrem odbornej inštalácie tiež potrebným komínovým ťahom a správnou obsluhou.
parametre:
Menovitý výkon 39 KW
Výška kotla celková 1030 mm
Šírka kotla vč.krytů 670 mm
Hĺbka kotla 1030 mm
Vodný objem kotla 83 l
ilustračné foto
Obrázky sa môžu líšiť od originálneho produktu/položky.
Dokumenty
- Pro odeslání do Česka navštivte SLOKOV VARIANT SL39D Kotel na dřevo (3. emisní třída)
Recenzia (0)
Napísať recenziu
Hodnotenie: Zlé Dobré
Opište kód z obrázku:



