ALCAPLAST Sádromodul, systém s odvetrávaním pre suchú inštaláciu AM101/1120V
Model: AM101/1120V
Popis
ALCAPLAST Sádromodul, systém s odvetrávaním pre suchú inštaláciu AM101/1120Vpoužitie:
- Pre závesné WC
- Pre montáž pred nosnú stenu alebo do sadrokartónovej konštrukcie
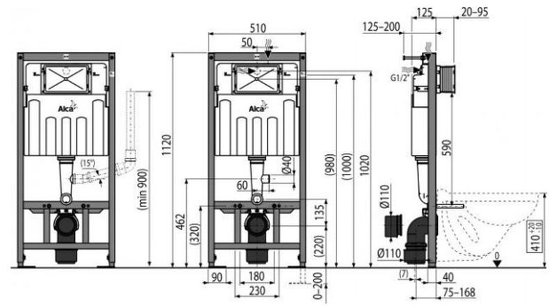
- Pre hrúbku podláh 0-200 mm
- Pre pripojenie k ventilačnému systému
- Pre montáž závesného WC s pripojovacou roztečou 180 mm alebo 230 mm
vlastnosti:
- Odsávanie zápachu priamo z WC misy
- Možnosť napojenia na ventilátor (nie je súčasťou balenia)
- Odporúčaný ventilátor o prietoku 30m3 / h, tlakom 60 Pa a spätnou klapkou, ventilátor potrebné umiestniť minimálne vo výške 1,2 m od podlahy
- Nastaviteľné kotviace výsuvné nohy s brzdou v rozmedzí 0-200 mm
- Viditeľné označenie nivelácie a stredové rysky
- Posuvný mechanizmus držiaka odpadu v ôsmich polohách vo vzdialenosti 0-93 mm
- Rohový ventil s možnosťou na napojenia na potrubný systém Mepla
- Konštrukcia rámu dovoľuje kotvenie k samostatnej, dostatočne nosné sadrokartónové priečke alebo pred nosnú stenu
- Nainštalovaný systém sa zaklopia sadrokartónovými doskami a nie sú potrebné žiadne prídavné vystužujúce ani kotviace prvky
- Konštrukcia polystyrénové izolácie zabraňuje roseniu na povrchu nádržky a tlmí prestup vibrácií z nádržky do stavebnej konštrukcie
- Príprava na pripojenie držiaku s DG1 / 2 "prechodom pre Dosky a spŕšky
- Duálny splachovanie, nezávisle nastaviteľné s hygienickou rezervou
- Možnosť zabudovania oddialeného alebo senzorového splachovanie
- Kompatibilné so všetkými ovládacími tlačidlami Alcaplast
- Servisné práce bez použitia náradia
- Prívod vody zozadu / zhora uprostred
- Nádržka je vyrobená z jedného kusu, čím je zaručená 100% nepriepustnosť
- Kryt servisného otvoru zjednodušuje montáž a bráni prenikaniu vlhkosti a nečistôt
- Montážna hĺbka nastaviteľná v rozmedzí 20-95 mm
- Stavebná hĺbka 125 mm
vlastnosti:
- Materiál nosnej konštrukcie: kov ošetrený práškovou farbou
normy:
- STN EN 14124, STN EN 14055
Rozsah dodávky:
- Nádrž s napúšťací a vypúšťací armatúru
- Samonosný rám
- Nákrutka 1/2 "pre pripojenie vody s integrovaným rohovým ventilom Schell 1/2" - 3/8 "
- Skrutka mechanizmu 2 ks
- Fixačný set: vrut priemer 8x60 - 4 ks, hmoždinka priemer 12 - 4 ks
- Fixačný materiál pre uchytenie WC misy: závitová tyč M12 - 2 ks, podložky - 4 ks, krytka - 2 ks, matica - 2 ks, chránička závitu - 2 ks
- Koleno odpadu HT90 / 110 polyetylén, PE-HD
- Tesnenie prívodu, vývodka polypropylén, vrapovej vložka
- Tesnenie odpadu, prepojka polypropylén, tesnenia prepojky
- Sada inštalačných krytiek pre ochranu pripojovacích otvorov pri montáži systému
- Kryt servisného otvoru dvojdielny, jednoducho zkrátitelný
- Koleno HT pre pripojenie k ventilačnému systému
- Zátka pre upchanie otvoru odsávanie pokiaľ nie je použitý
Technické parametre:
- Pripojenie vody zozadu alebo zhora montážnymi otvormi G1 / 2 "
- Funkčný rozsah tlaku vody 0,05-0,8 MPa
- Odporúčaný rozsah tlaku vody 0,3-0,5 MPa
- Veľké spláchnutie 6-9 l
- Malé spláchnutie 2,5-3,5 l
- Štandardné nastavenie veľkého spláchnutí 6 l
- Štandardné nastavenie malého spláchnutí 3 l
- Hygienická rezerva 3 l
- Objem vody v nádržke 9 l
- Záťažová skúška 400 kg
- Rozmer (kus) 1130 × 145 × 520 mm
- Rozmer (balenie) 1130 × 520 × 145 mm
ilustračné foto
Obrázky sa môžu líšiť od originálneho produktu/položky.
Dokumenty
- Pro odeslání do Česka navštivte ALCAPLAST Sádromodul, systém s odvětráváním pro suchou instalaci AM101/1120V
- Magyarországra történő szállítás ALCAPLAST falsík alatti WC tartály szellőző előkészítéssel száraz szereléshez AM101/1120V
Recenzia (0)
Napísať recenziu
Hodnotenie: Zlé Dobré
Opište kód z obrázku:




