SANELA WC s umývadlom do rohu SLWN 18L, WC na zemi vľavo, servisný otvor 94181
Model: 94181
Popis
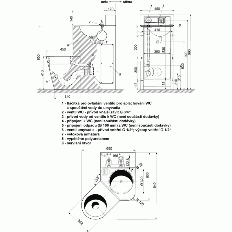
SANELA WC s umývadlom do rohu SLWN 18L, WC na zemi vľavo, servisný otvor 94181- Antivandalové prevedenie
- Kompaktný set WC s lisovaným umývadlom, umývadlovú armatúrou a otvorom pre toaletný papier
- Tlačný ventil na ovládanie umývadlové armatúry
- Tlačný ventil pre splachovanie WC
- SLWN 18P - WC stojace na zemi vpravo
- SLWN 18L - WC stojace na zemi vľavo
- SLWN 18ZP - závesné WC vpravo
- SLWN 18ZL - závesné WC vľavo
- Montáž cez servisný otvor
- Materiál CrNi 18/10 (AISI - 304), hrúbka 1,5 mm
- Vystužené polyuretánom (znížená hlučnosť, zvýšená pevnosť)
- Povrch matný
Špecifikácia dodávky:
SLWN 18L - obj č 94181 - nerezový kompaktný set WC s umývadlom, 2x tlačný ventil, umývadlová armatúra, sifón, Úchytková sada
ilustračné foto
Obrázky sa môžu líšiť od originálneho produktu/položky.
- Pro odeslání do Česka navštivte SANELA WC s umyvadlem do rohu SLWN 18L, WC na zemi vlevo, servisní otvor 94181
Recenzia (0)
Napísať recenziu
Hodnotenie: Zlé Dobré
Opište kód z obrázku:


















